| Наименование | Параметр | ||
| Строение | Индивидуальный проект бани | ||
| Материал, Сечение | из оцилиндрованного бревна 200 | ||
| Кол-во спален | 1 | ||
| Кол-во С/у | 1 | ||
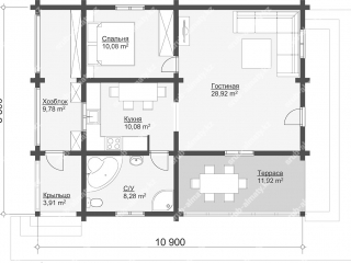
| Общая площадь | 82,97 | ||
| Жилая площадь | 39 | ||
| Объем материала | 45_м/куб. | ||
| Площадь кровли | 118,34 | ||
| Осевые габариты | 8 500 х 11 000 | ||
| Н1 | 2,5_м. | ||
| Н2 | _м. | ||
| Площадь гаража |