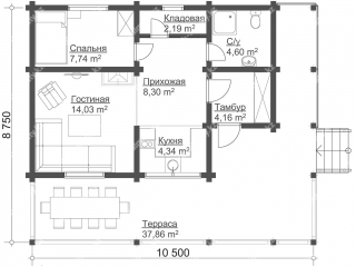
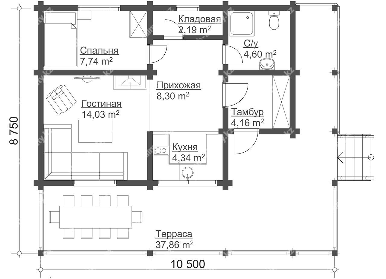
S Общая
81 м.кв
Материал
брус 200мм.
Объем материала
49 м.куб
S кровли
140 м.кв
Осевые габариты
8,75х10,5 м.
H1
2,6 м. (подъем боковой стены)