| Наименование | Параметр | ||
| Строение | Индивидуальный проект жилого дома | ||
| Материал, Сечение | из профилированного бруса 150х150 (М35) | ||
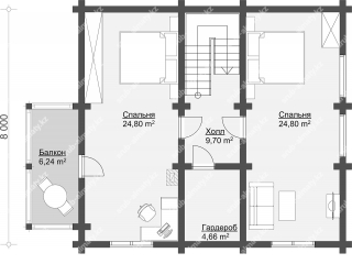
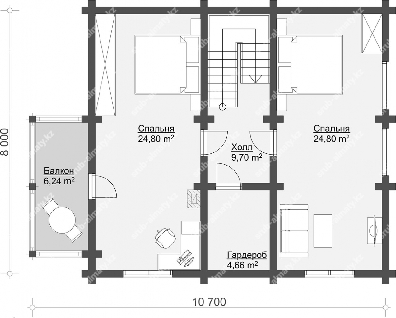
| Кол-во спален | 2 | ||
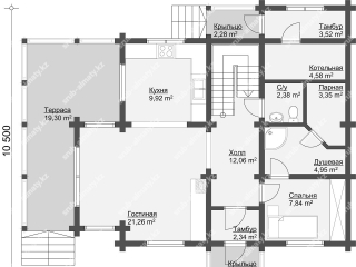
| Кол-во С/у | 1 | ||
| Общая площадь | 139,06 | ||
| Жилая площадь | 52,32 | ||
| Объем материала | 75_м/куб. | ||
| Площадь кровли | 170,56 | ||
| Осевые габариты | 9 000 х 9 500 | ||
| Н1 | 2,65_м. | ||
| Н2 | 2,6_м. | ||
| Площадь гаража |