Дома деревянные в Алматы
Оставьте заявку онлайн и мы вам перезвоним

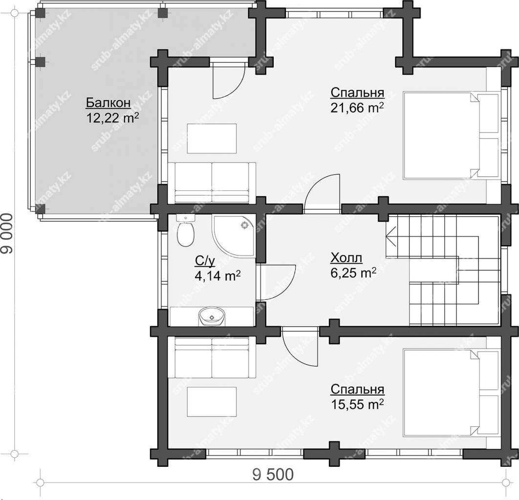
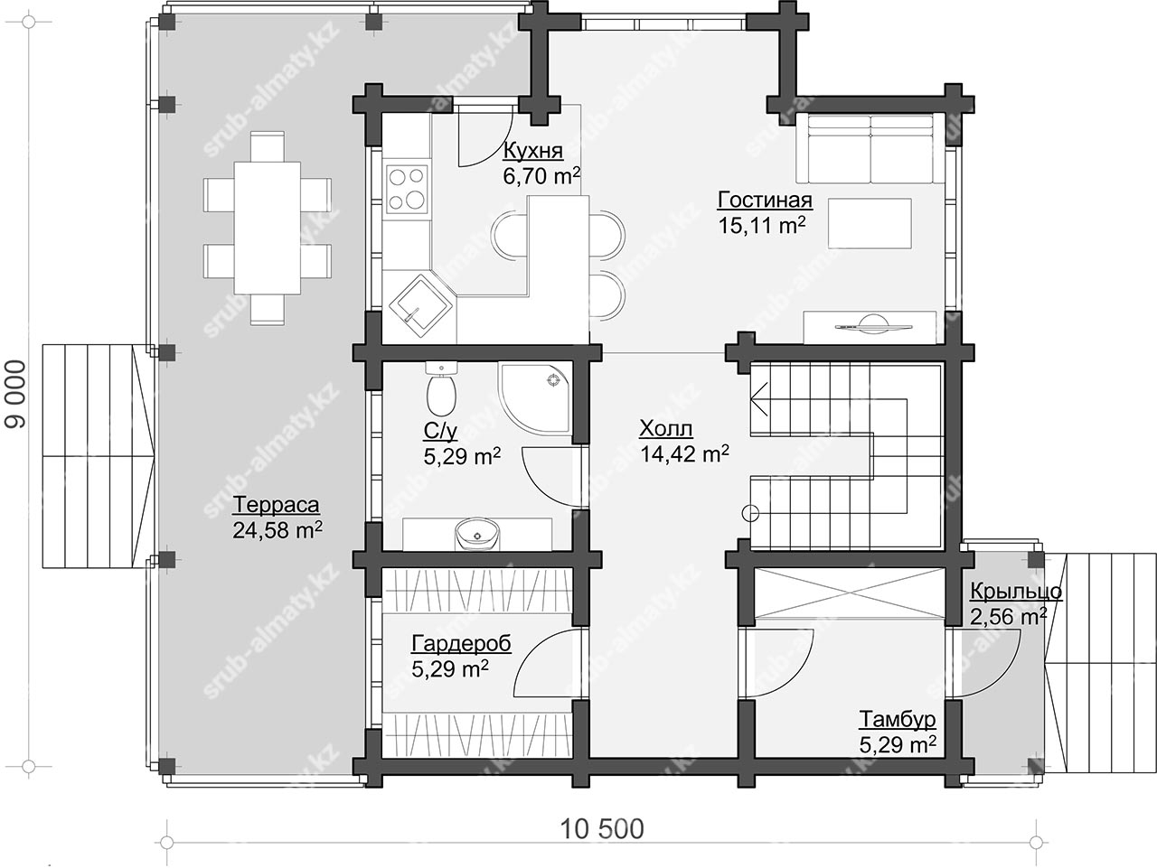
Дома из бруса ДП-142