| Наименование | Параметр | ||
| Строение | Индивидуальный проект дома-бани | ||
| Материал, Сечение | из профилированного бруса 200х180 (М70) | ||
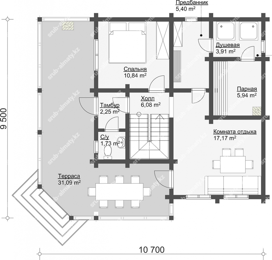
| Кол-во спален | 3 | ||
| Кол-во С/у | 2 | ||
| Общая площадь | 135,4 | ||
| Жилая площадь | 52,26 | ||
| Объем материала | 75_м/куб. | ||
| Площадь кровли | 164,7 | ||
| Осевые габариты | 9 500 х 10 700 | ||
| Н1 | 2,8_м. | ||
| Н2 | 1,7-3,0_м. | ||
| Площадь гаража |