Дома деревянные в Алматы
Оставьте заявку онлайн и мы вам перезвоним

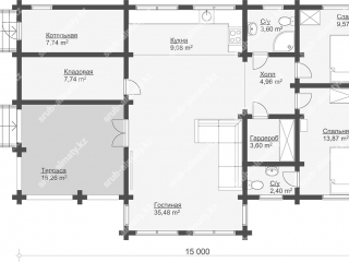
Дома из бруса ДП-104