Дома деревянные в Алматы
+7 747 036-55-30
+7 701 508-78-47
Оставьте заявку онлайн
и мы вам перезвоним
Меню
Главная
Каталог
Прайс-лист
Напишите нам
×
Оставьте заявку онлайн
Главная страница
Каталог
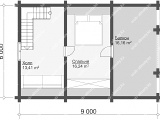
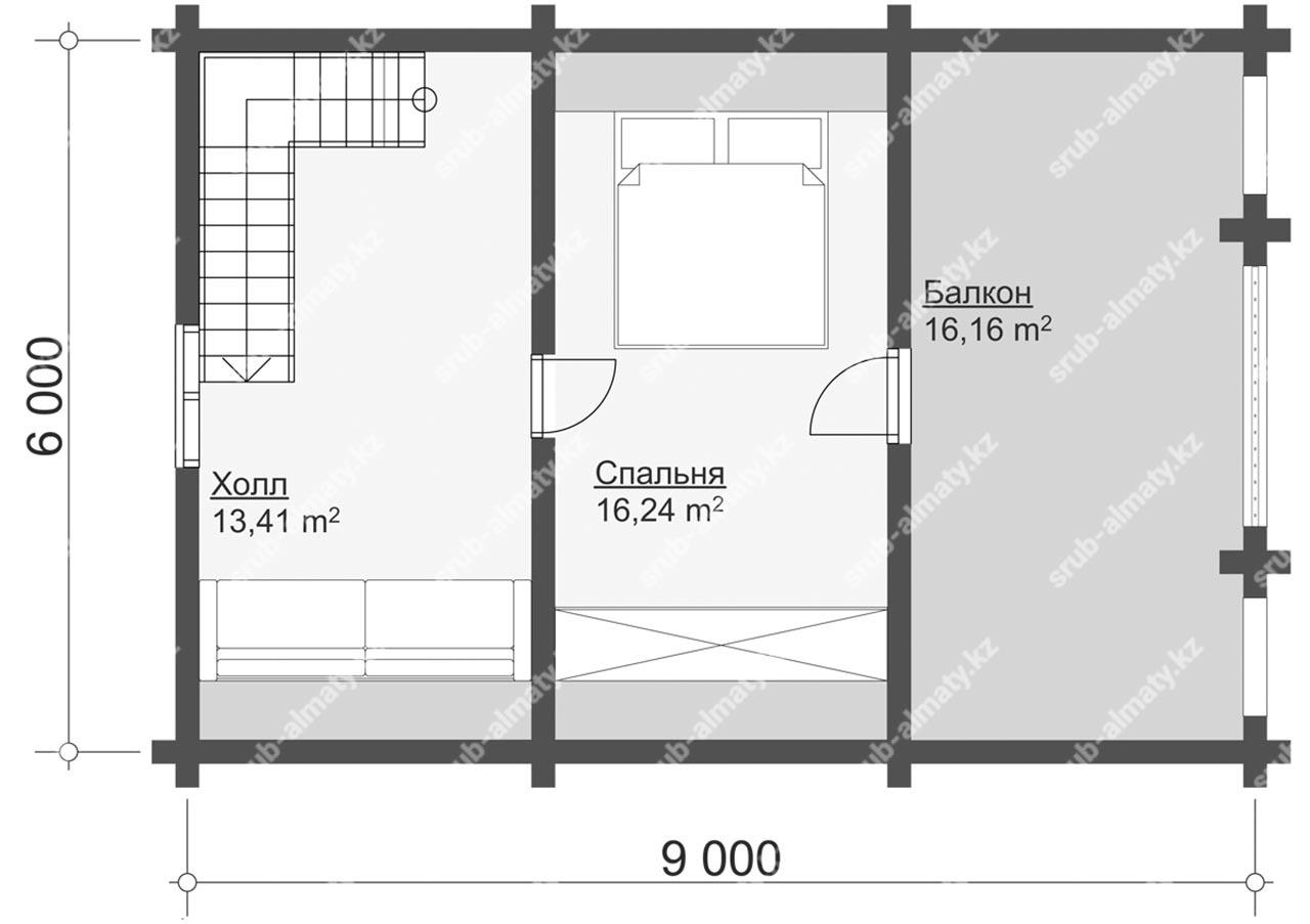
Дома из бревна ДК-95
Дома из бревна ДК-95