| Наименование | Параметр | ||
| Строение | Индивидуальный проект бани | ||
| Материал, Сечение | из оцилиндрованного бревна 220 | ||
| Кол-во спален | |||
| Кол-во С/у | 1 | ||
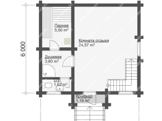
| Общая площадь | 73,47 | ||
| Жилая площадь | |||
| Объем материала | 39 м/куб. | ||
| Площадь кровли | 87,08 | ||
| Осевые габариты | 6 000 х 6 700 | ||
| Н1 | 2,55м. | ||
| Н2 | 1 -3 м. | ||
| Площадь гаража |