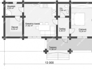
| Строение | Индивидуальный проект бани | ||
| Материал, Сечение | из бревна ручной рубки, среднего диаметра 260 мм. | ||
| Кол-во спален | 1 | ||
| Кол-во С/у | 1 | ||
| Общая площадь | 66,9 | ||
| Жилая площадь | 15,24 | ||
| Объем материала | 59 м/куб. | ||
| Площадь кровли | 127,79 | ||
| Осевые габариты | 5 000 х 13 000 | ||
| Н1 | 2,8_м. | ||
| Н2 | _м. | ||
| Площадь гаража |