| Наименование | Параметр | ||
| Строение | Индивидуальный проект бани | ||
| Материал, Сечение | из бревна ручной рубки 260 мм | ||
| Кол-во спален | |||
| Кол-во С/у | 1 | ||
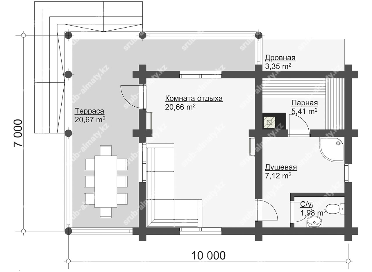
| Общая площадь | 87,43 | ||
| Жилая площадь | 20,66 | ||
| Объем материала | 39 м/куб. | ||
| Площадь кровли | 121,92 | ||
| Осевые габариты | 7 000 х 10 000 | ||
| Н1 | 2,3м. | ||
| Н2 | 1,1м. | ||
| Площадь гаража |