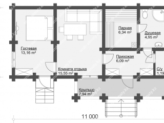
| Наименование | Параметр | ||
| Строение | Индивидуальный проект бани | ||
| Материал, Сечение | из оцилиндрованного бревна 220 | ||
| Кол-во спален | |||
| Кол-во С/у | 1 | ||
| Общая площадь | 55,22 | ||
| Жилая площадь | 28,71 | ||
| Объем материала | 39м/куб. | ||
| Площадь кровли | 102,36 | ||
| Осевые габариты | 6 500 х 11 000 | ||
| Н1 | 2,7 м. | ||
| Н2 | _м. | ||
| Площадь гаража |