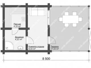
Материал
d 200мм.
Общая S
34,65 м.кв
Объем материала
18,5 м.куб
S кровли
68,5 м.кв
Осевые габариты
8,5х4,5 м.
H1
2,4 м.