Дома деревянные в Алматы
+7 747 036-55-30
+7 701 508-78-47
Оставьте заявку онлайн
и мы вам перезвоним
Меню
Главная
Каталог
Прайс-лист
Напишите нам
×
Оставьте заявку онлайн
Главная страница
Каталог
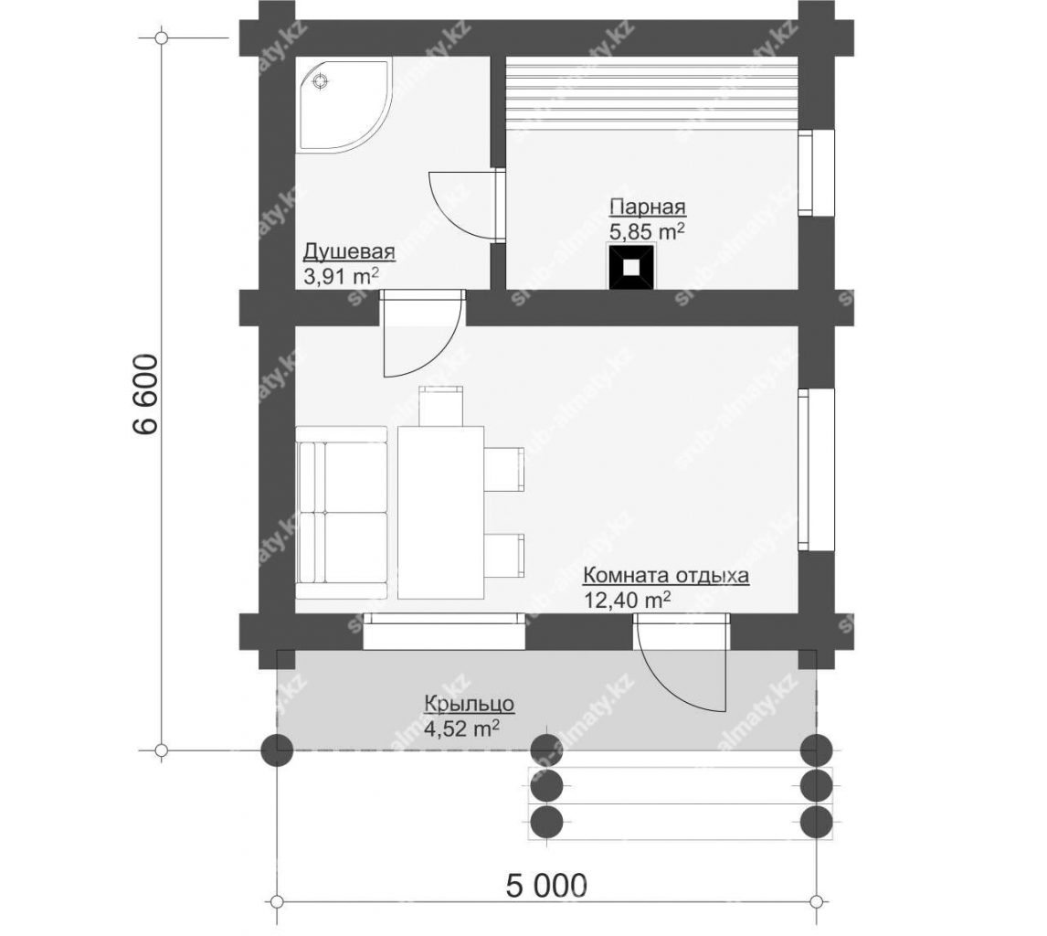
Бани из бревна БК-27
Бани из бревна БК-27
Строение
Индивидуальный проект бани
Материал, Сечение
из бревна 340
Кол-во спален
Кол-во С/у
Общая площадь
26,68
Жилая площадь
Объем материала
35м/куб.
Площадь кровли
64,42
Осевые габариты
5 000 х 6 600
Н1
2,6м.
Н2
_м.
Площадь гаража