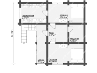
| Наименование | Параметр | ||
| Строение | Индивидуальный проект бани | ||
| Материал, Сечение | из оцилиндрованного бревна 280 | ||
| Кол-во спален | |||
| Кол-во С/у | 1 | ||
| Общая площадь | 99,35 | ||
| Жилая площадь | 23,52 | ||
| Объем материала | 75,5_м/куб. | ||
| Площадь кровли | 187,47 | ||
| Осевые габариты | 10 000 х 13 300 | ||
| Н1 | 2,6_м. | ||
| Н2 | _м. | ||
| Площадь гаража |